Ref: 3742CB
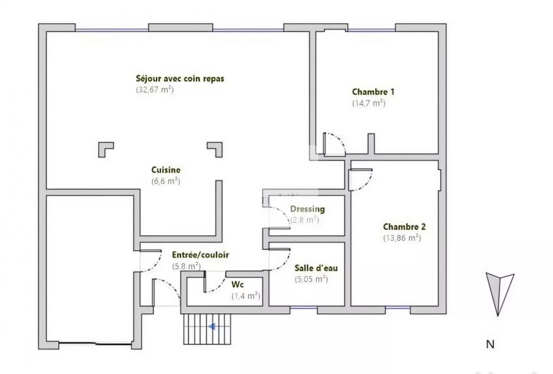
Proche de toutes commodités et commerces, venez découvrir cette maison de plain-pied d'environ 83m2 comprend un lumineux séjour/cuisine de 37m2 avec 2 grandes baies vitrées plein sud, un coin cellier/buanderie, 2 belles chambres de 14 et 15m2 équipées de placards, une salle d'eau et toilettes séparées.
Un garage de 14m2 et un joli jardin arboré d'environ 500m2 entièrement clos.
Cette villa est équipée d'un chauffage par climatisation réversible (pompe à chaleur), de menuiseries double vitrage PVC et de volets roulants.
Une troisième chambre peut être envisagée dans le garage si nécessaire, votre véhicule bénéficiant toujours d'un accès sécurisé à l'arrière du jardin.
Ce bien nécessitera des travaux d'amélioration afin d'être remis au goût du jour et de pouvoir bénéficier de tout le confort moderne.
Acquéreurs bricoleurs, cette maison est pour vous !
Pour tout renseignement ou visite, contactez Céline BERNARD au 0626366287.
Résumé
TypeMaison
Chambres2
Salle d'eau1
Surface83 m²
Terrain470 m²
Prix196 000€
Localisation
Détails
Référence85893592
Année de construction1980
Etat généralÀ rafraîchir
ExpositionSud
VueAperçu
Chauffage Individuel
Eau chaudeIndividuelle
Prix196 000€
Charges honorairesvendeur
Les plus
Jardin
Garage
Fibre optique
Diagnostic énergétique du bien
Diagnostic de performance énergétique
112
KWh/m².an
3*
kg CO2/m².an
Logement économe
A
B
C
D
E
F
G
Logement énergivore
DPE non communiquéConsommations non exploitables
* Dont émissions de gaz à effet de serre
Faible émission de GES
A
B
C
D
E
F
G
Forte émission de GES
3
KgéqCO2 / m².an
GES non communiquéConsommations non exploitables
Géorisques
Les informations sur les risques auxquels ce bien est exposé sont disponibles sur le site Géorisques https://www.georisques.gouv.fr
Préférences de confidentialité
Nous utilisons des cookies et des technologies similaires sur notre site Web et traitons des données personnelles vous concernant, telles que votre adresse IP. Nous partageons également ces données avec des tiers. Le traitement des données peut être effectué avec votre consentement ou sur la base d'un intérêt légitime, auquel vous pouvez vous opposer dans les paramètres de confidentialité individuels. Vous avez le droit de consentir uniquement aux services essentiels et de modifier ou de révoquer votre consentement ultérieurement dans la politique de confidentialité.
Vous avez moins de 16 ans ? Dans ce cas, vous ne pouvez pas consentir à des services optionnels. demandez à vos tuteurs légaux d'accepter ces services avec vous.
Fonctionnel
Toujours activé
Le stockage ou l’accès technique est strictement nécessaire dans la finalité d’intérêt légitime de permettre l’utilisation d’un service spécifique explicitement demandé par l’abonné ou l’utilisateur, ou dans le seul but d’effectuer la transmission d’une communication sur un réseau de communications électroniques.
Préférences
Le stockage ou l’accès technique est nécessaire dans la finalité d’intérêt légitime de stocker des préférences qui ne sont pas demandées par l’abonné ou l’utilisateur.
Statistiques
Le stockage ou l’accès technique qui est utilisé exclusivement à des fins statistiques.Le stockage ou l’accès technique qui est utilisé exclusivement dans des finalités statistiques anonymes. En l’absence d’une assignation à comparaître, d’une conformité volontaire de la part de votre fournisseur d’accès à internet ou d’enregistrements supplémentaires provenant d’une tierce partie, les informations stockées ou extraites à cette seule fin ne peuvent généralement pas être utilisées pour vous identifier.
Marketing
Le stockage ou l’accès technique est nécessaire pour créer des profils d’utilisateurs afin d’envoyer des publicités, ou pour suivre l’utilisateur sur un site web ou sur plusieurs sites web à des fins de marketing similaires.