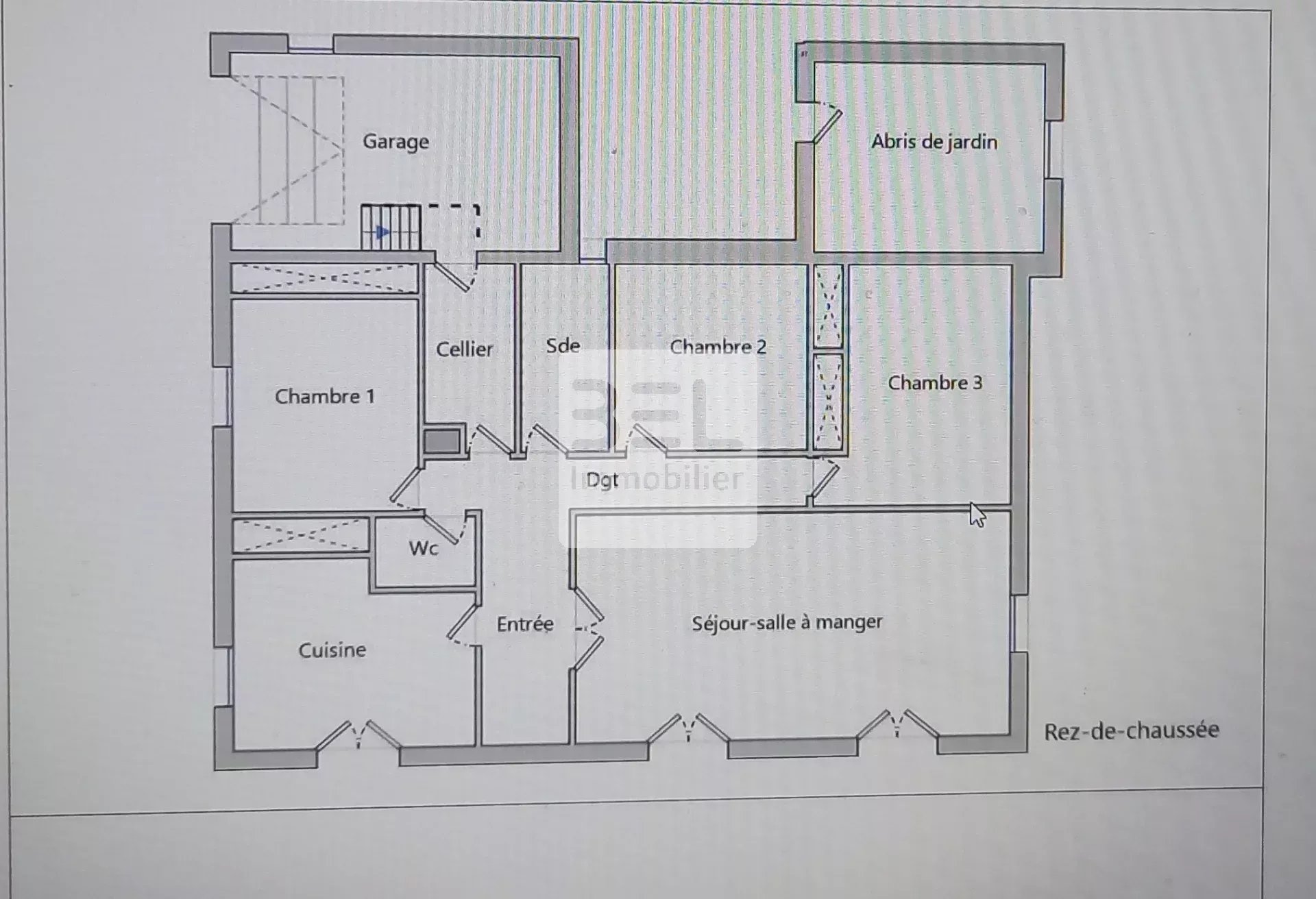
Réf:3020DC: Dans quartier agréable proche des commodités et des écoles à pied, venez découvrir cette maison traditionnelle de plain pied, lumineuse, bien agencée et bien entretenue. Elle comprend un large séjour avec cheminée insert, une cuisine toute équipée/aménagée, 3 chambres, une salle d'eau, un cellier, un garage et des caves. Pour l'extérieur , vous pourrez apprécier son terrain de 811m² entièrement clos et arboré. Cette maison peut être vendue meublée.
Résumé
TypeMaison
Chambres3
Salle d'eau1
Surface98 m²
Terrain811 m²
Prix220 000€
Localisation
Détails
Référence83752458
Etat généralBon état
ExpositionOuest
VueAperçu
Chauffage Individuel
Eau chaudeIndividuelle
Prix220 000€
Charges honorairesvendeur
Taxe foncière1082€
Diagnostic énergétique du bien
Diagnostic de performance énergétique
316
KWh/m².an
47*
kg CO2/m².an
Logement économe
A
B
C
D
E
F
G
Logement énergivore
DPE non communiquéConsommations non exploitables
* Dont émissions de gaz à effet de serre
Faible émission de GES
A
B
C
D
E
F
G
Forte émission de GES
47
KgéqCO2 / m².an
GES non communiquéConsommations non exploitables
Géorisques
Les informations sur les risques auxquels ce bien est exposé sont disponibles sur le site Géorisques https://www.georisques.gouv.fr
Préférences de confidentialité
Nous utilisons des cookies et des technologies similaires sur notre site Web et traitons des données personnelles vous concernant, telles que votre adresse IP. Nous partageons également ces données avec des tiers. Le traitement des données peut être effectué avec votre consentement ou sur la base d'un intérêt légitime, auquel vous pouvez vous opposer dans les paramètres de confidentialité individuels. Vous avez le droit de consentir uniquement aux services essentiels et de modifier ou de révoquer votre consentement ultérieurement dans la politique de confidentialité.
Vous avez moins de 16 ans ? Dans ce cas, vous ne pouvez pas consentir à des services optionnels. demandez à vos tuteurs légaux d'accepter ces services avec vous.
Fonctionnel
Toujours activé
Le stockage ou l’accès technique est strictement nécessaire dans la finalité d’intérêt légitime de permettre l’utilisation d’un service spécifique explicitement demandé par l’abonné ou l’utilisateur, ou dans le seul but d’effectuer la transmission d’une communication sur un réseau de communications électroniques.
Préférences
Le stockage ou l’accès technique est nécessaire dans la finalité d’intérêt légitime de stocker des préférences qui ne sont pas demandées par l’abonné ou l’utilisateur.
Statistiques
Le stockage ou l’accès technique qui est utilisé exclusivement à des fins statistiques.Le stockage ou l’accès technique qui est utilisé exclusivement dans des finalités statistiques anonymes. En l’absence d’une assignation à comparaître, d’une conformité volontaire de la part de votre fournisseur d’accès à internet ou d’enregistrements supplémentaires provenant d’une tierce partie, les informations stockées ou extraites à cette seule fin ne peuvent généralement pas être utilisées pour vous identifier.
Marketing
Le stockage ou l’accès technique est nécessaire pour créer des profils d’utilisateurs afin d’envoyer des publicités, ou pour suivre l’utilisateur sur un site web ou sur plusieurs sites web à des fins de marketing similaires.