REF 3684LB : Pont-Saint-Esprit
Ensemble immobilier avec une belle rentabilité en centre ville proche des parking en angle de rue, idéal investisseur, à proximité du parking de la bourse
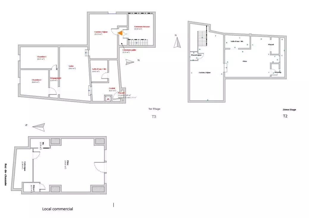
Composé de 3 lots avec des entrées indépendantes, compteur d'eau et électrique individuel
- au 1er étage : 1 T3 d'environ 78m² au sol (presque 63m² loi carrez)
- au 2ème étage : 1 T2 d'environ 72m² au sol (Prévoir de légers travaux). Presque 45m² loi carrez.
Une terrasse commune et un local technique leur sont attribués.
- au RDC : Un local commercial d'environ 30m²
Revenu locatif brut potentiel : 18000€ soit une rentabilité de plus de 11% après quelques travaux énergétiques.
Immeuble de rapport à venir visiter sans tarder, idéal investisseur souhaitant avoir une petite enveloppe travaux à déduire.
Plan non contractuel
Petite copropriété de 5 lots
Aucune charge de copropriété
Pas de procédure en cours
Résumé
TypeImmeuble
Surface140 m²
Prix130 000€
Localisation
Détails
Référence85671931
Année de construction1948
Etat généralÀ rafraîchir
ExpositionEst
Chauffage Individuel
Eau chaudeIndividuelle
Prix130 000€
Charges honorairesvendeur
Taxe foncière2500€
Les plus
Terrasse
Diagnostic énergétique du bien
Diagnostic de performance énergétique
311
KWh/m².an
10*
kg CO2/m².an
Logement économe
A
B
C
D
E
F
G
Logement énergivore
DPE non communiquéConsommations non exploitables
* Dont émissions de gaz à effet de serre
Faible émission de GES
A
B
C
D
E
F
G
Forte émission de GES
10
KgéqCO2 / m².an
GES non communiquéConsommations non exploitables
Géorisques
Les informations sur les risques auxquels ce bien est exposé sont disponibles sur le site Géorisques https://www.georisques.gouv.fr
Préférences de confidentialité
Nous utilisons des cookies et des technologies similaires sur notre site Web et traitons des données personnelles vous concernant, telles que votre adresse IP. Nous partageons également ces données avec des tiers. Le traitement des données peut être effectué avec votre consentement ou sur la base d'un intérêt légitime, auquel vous pouvez vous opposer dans les paramètres de confidentialité individuels. Vous avez le droit de consentir uniquement aux services essentiels et de modifier ou de révoquer votre consentement ultérieurement dans la politique de confidentialité.
Vous avez moins de 16 ans ? Dans ce cas, vous ne pouvez pas consentir à des services optionnels. demandez à vos tuteurs légaux d'accepter ces services avec vous.
Fonctionnel
Toujours activé
Le stockage ou l’accès technique est strictement nécessaire dans la finalité d’intérêt légitime de permettre l’utilisation d’un service spécifique explicitement demandé par l’abonné ou l’utilisateur, ou dans le seul but d’effectuer la transmission d’une communication sur un réseau de communications électroniques.
Préférences
Le stockage ou l’accès technique est nécessaire dans la finalité d’intérêt légitime de stocker des préférences qui ne sont pas demandées par l’abonné ou l’utilisateur.
Statistiques
Le stockage ou l’accès technique qui est utilisé exclusivement à des fins statistiques.Le stockage ou l’accès technique qui est utilisé exclusivement dans des finalités statistiques anonymes. En l’absence d’une assignation à comparaître, d’une conformité volontaire de la part de votre fournisseur d’accès à internet ou d’enregistrements supplémentaires provenant d’une tierce partie, les informations stockées ou extraites à cette seule fin ne peuvent généralement pas être utilisées pour vous identifier.
Marketing
Le stockage ou l’accès technique est nécessaire pour créer des profils d’utilisateurs afin d’envoyer des publicités, ou pour suivre l’utilisateur sur un site web ou sur plusieurs sites web à des fins de marketing similaires.