ref : 3686SR
En exclusivité, idéal investisseur cette ensemble immobilier propose au RDC un local commercial d'environ 50 m2 et à l'étage un appartement très lumineux avec grand salon séjour ouvert, 3 chambres avec salle d'eau et toilettes séparés.
Chauffage central et convecteurs électriques.
Points forts :
Cœur de village et parking proche
Belle visibilité pour le local commercial
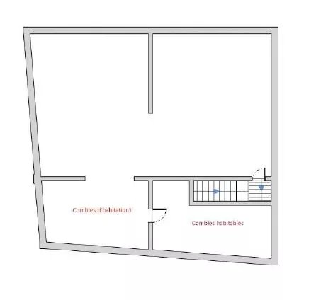
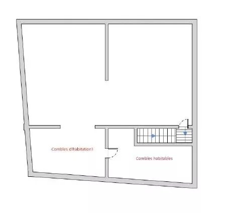
Combles aménageables
Le local commercial est refait à neuf prêt à accueillir votre activité.
Pas de copropriété.
N'hésitez pas à prendre plus de renseignements, contactez S Royer au 06.15.17.15.82
Résumé
TypeImmeuble
Chambres3
Salle d'eau1
Surface185 m²
Prix232 000€
Localisation
Détails
Référence86101304
Etat généralÀ rénover
Chauffage Individuel
Eau chaudeIndividuelle
Prix232 000€
Charges honorairesvendeur
Diagnostic énergétique du bien
Diagnostic de performance énergétique
283
KWh/m².an
76*
kg CO2/m².an
Logement économe
A
B
C
D
E
F
G
Logement énergivore
DPE non communiquéConsommations non exploitables
* Dont émissions de gaz à effet de serre
Faible émission de GES
A
B
C
D
E
F
G
Forte émission de GES
76
KgéqCO2 / m².an
GES non communiquéConsommations non exploitables
Logement à consommation énergétique excessive : classe F
Géorisques
Les informations sur les risques auxquels ce bien est exposé sont disponibles sur le site Géorisques https://www.georisques.gouv.fr
Préférences de confidentialité
Nous utilisons des cookies et des technologies similaires sur notre site Web et traitons des données personnelles vous concernant, telles que votre adresse IP. Nous partageons également ces données avec des tiers. Le traitement des données peut être effectué avec votre consentement ou sur la base d'un intérêt légitime, auquel vous pouvez vous opposer dans les paramètres de confidentialité individuels. Vous avez le droit de consentir uniquement aux services essentiels et de modifier ou de révoquer votre consentement ultérieurement dans la politique de confidentialité.
Vous avez moins de 16 ans ? Dans ce cas, vous ne pouvez pas consentir à des services optionnels. demandez à vos tuteurs légaux d'accepter ces services avec vous.
Fonctionnel
Toujours activé
Le stockage ou l’accès technique est strictement nécessaire dans la finalité d’intérêt légitime de permettre l’utilisation d’un service spécifique explicitement demandé par l’abonné ou l’utilisateur, ou dans le seul but d’effectuer la transmission d’une communication sur un réseau de communications électroniques.
Préférences
Le stockage ou l’accès technique est nécessaire dans la finalité d’intérêt légitime de stocker des préférences qui ne sont pas demandées par l’abonné ou l’utilisateur.
Statistiques
Le stockage ou l’accès technique qui est utilisé exclusivement à des fins statistiques.Le stockage ou l’accès technique qui est utilisé exclusivement dans des finalités statistiques anonymes. En l’absence d’une assignation à comparaître, d’une conformité volontaire de la part de votre fournisseur d’accès à internet ou d’enregistrements supplémentaires provenant d’une tierce partie, les informations stockées ou extraites à cette seule fin ne peuvent généralement pas être utilisées pour vous identifier.
Marketing
Le stockage ou l’accès technique est nécessaire pour créer des profils d’utilisateurs afin d’envoyer des publicités, ou pour suivre l’utilisateur sur un site web ou sur plusieurs sites web à des fins de marketing similaires.