REF 3537RAS
Un appartement de style haussmannien en plein coeur d'Avignon, ça vous tente?
Situé dans une petite rue calme, à proximité des Halles, des restaurants, des commerces et des écoles, vous pourrez tout faire à pied.
Vous serez sous le charme des moulures, de la hauteur sous plafond, du parquet, de la bibliothèque ou encore de cette fresque au dessus de la porte, pleins de détails qui en font un lieu atypique.
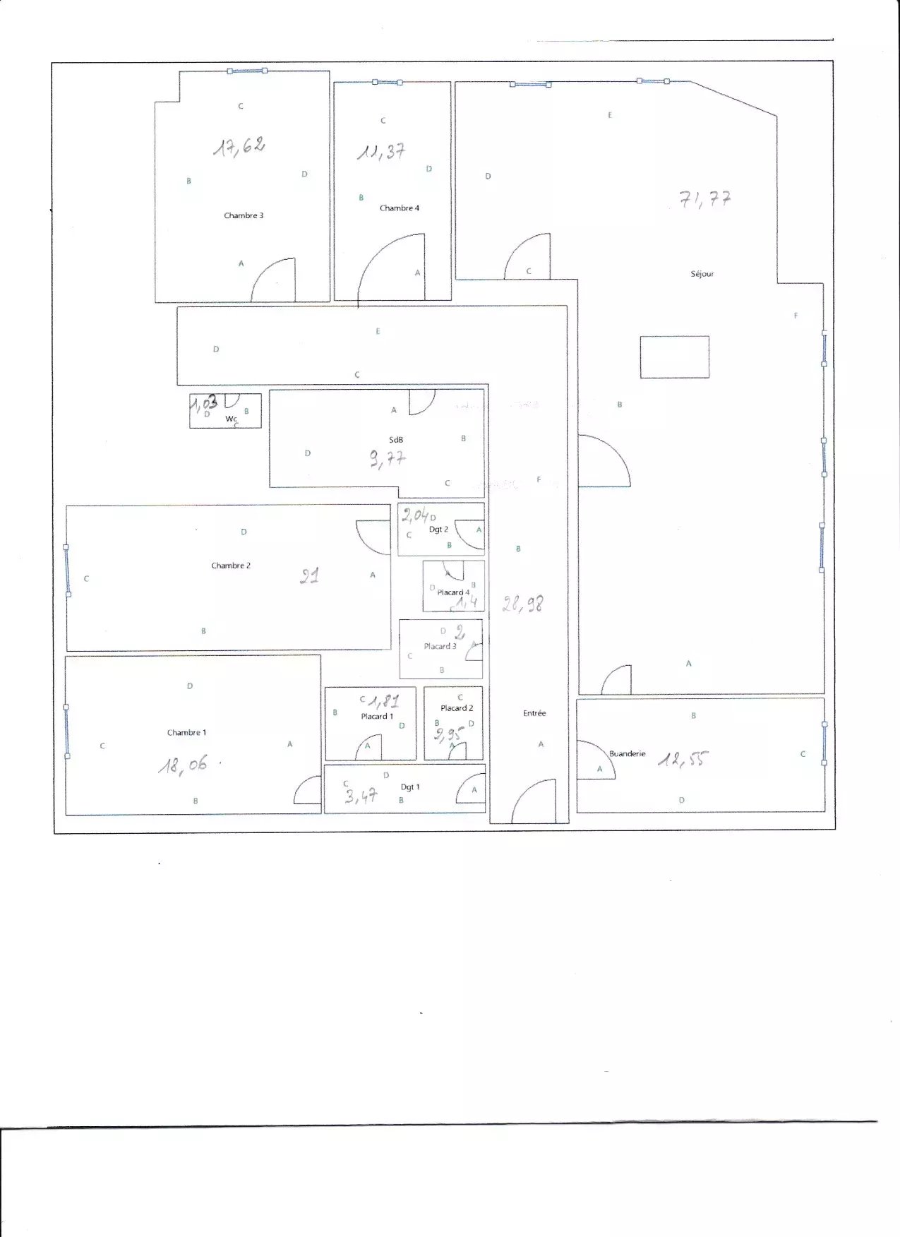
Sur plus de 200 m², il se compose d'une entrée, un double séjour de 72 m² avec cuisine ouverte et sa cheminée, de quatre chambres (18-21-17-12 m²), une grande salle de bain, de nombreux rangements et une buanderie.
Mais surtout, rare dans Avignon, une place de parking fermée et sécurisée. Et pour finir, une cave de 13 m².
Copropriété de 27 lots dont 7 à usage d'habitation. Pas de procédure en cours. Charges annuelles : 1 000 €
Résumé
TypeAppartement
Chambres4
Salle de bains1
Surface205.82 m²
Prix598 000€
Localisation
Détails
Référence85317321
Numéro d'étageslast
Prix598 000€
Charges honorairesvendeur
Montant annuel des charges courantes du lot250€
Les plus
Cave
Digicode
Diagnostic énergétique du bien
Diagnostic de performance énergétique
176
KWh/m².an
38*
kg CO2/m².an
Logement économe
A
B
C
D
E
F
G
Logement énergivore
DPE non communiquéConsommations non exploitables
* Dont émissions de gaz à effet de serre
Faible émission de GES
A
B
C
D
E
F
G
Forte émission de GES
38
KgéqCO2 / m².an
GES non communiquéConsommations non exploitables
Géorisques
Les informations sur les risques auxquels ce bien est exposé sont disponibles sur le site Géorisques https://www.georisques.gouv.fr
Préférences de confidentialité
Nous utilisons des cookies et des technologies similaires sur notre site Web et traitons des données personnelles vous concernant, telles que votre adresse IP. Nous partageons également ces données avec des tiers. Le traitement des données peut être effectué avec votre consentement ou sur la base d'un intérêt légitime, auquel vous pouvez vous opposer dans les paramètres de confidentialité individuels. Vous avez le droit de consentir uniquement aux services essentiels et de modifier ou de révoquer votre consentement ultérieurement dans la politique de confidentialité.
Vous avez moins de 16 ans ? Dans ce cas, vous ne pouvez pas consentir à des services optionnels. demandez à vos tuteurs légaux d'accepter ces services avec vous.
Fonctionnel
Toujours activé
Le stockage ou l’accès technique est strictement nécessaire dans la finalité d’intérêt légitime de permettre l’utilisation d’un service spécifique explicitement demandé par l’abonné ou l’utilisateur, ou dans le seul but d’effectuer la transmission d’une communication sur un réseau de communications électroniques.
Préférences
Le stockage ou l’accès technique est nécessaire dans la finalité d’intérêt légitime de stocker des préférences qui ne sont pas demandées par l’abonné ou l’utilisateur.
Statistiques
Le stockage ou l’accès technique qui est utilisé exclusivement à des fins statistiques.Le stockage ou l’accès technique qui est utilisé exclusivement dans des finalités statistiques anonymes. En l’absence d’une assignation à comparaître, d’une conformité volontaire de la part de votre fournisseur d’accès à internet ou d’enregistrements supplémentaires provenant d’une tierce partie, les informations stockées ou extraites à cette seule fin ne peuvent généralement pas être utilisées pour vous identifier.
Marketing
Le stockage ou l’accès technique est nécessaire pour créer des profils d’utilisateurs afin d’envoyer des publicités, ou pour suivre l’utilisateur sur un site web ou sur plusieurs sites web à des fins de marketing similaires.